KONSEPT TASARIMLAR
MİMARİ
İÇ MİMARİ
AKADEMİK
İLETİŞİM
BOZOğLU ARCHITECTS
ARCHITECTURAL STUDIO & AI RENDERINGS
KONSEPT TASARIMLAR
MİMARİ
İÇ MİMARİ
AKADEMİK
İLETİŞİM

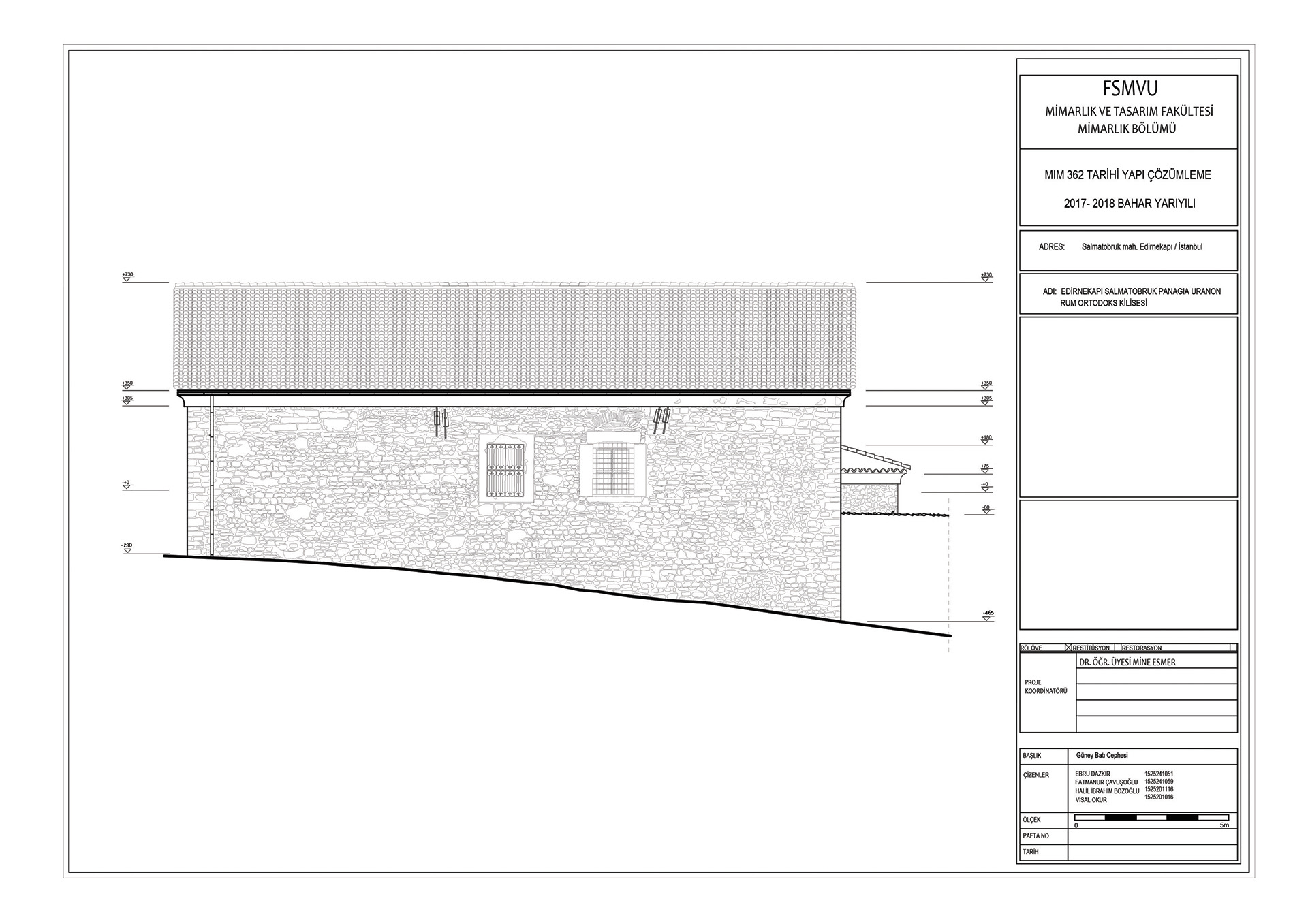
MIM362 Historical Building Analysis (Rölöve)

All Rigths reserved by Halil İbrahim Bozoğlu 2026 ®